Progetto: Casa FB, Cittadella (PD)
Cliente: privato
Anno: 2023 - In corso

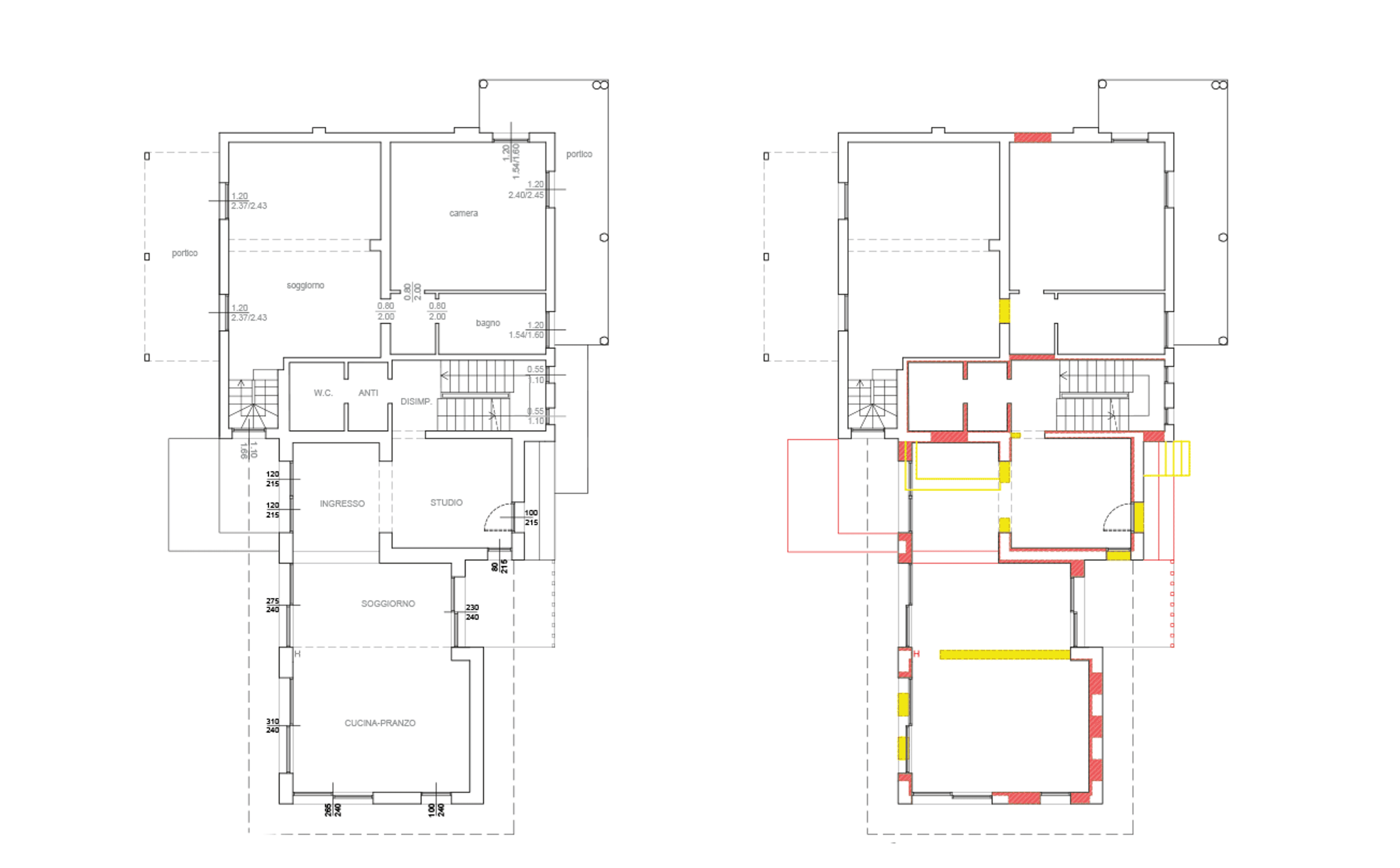
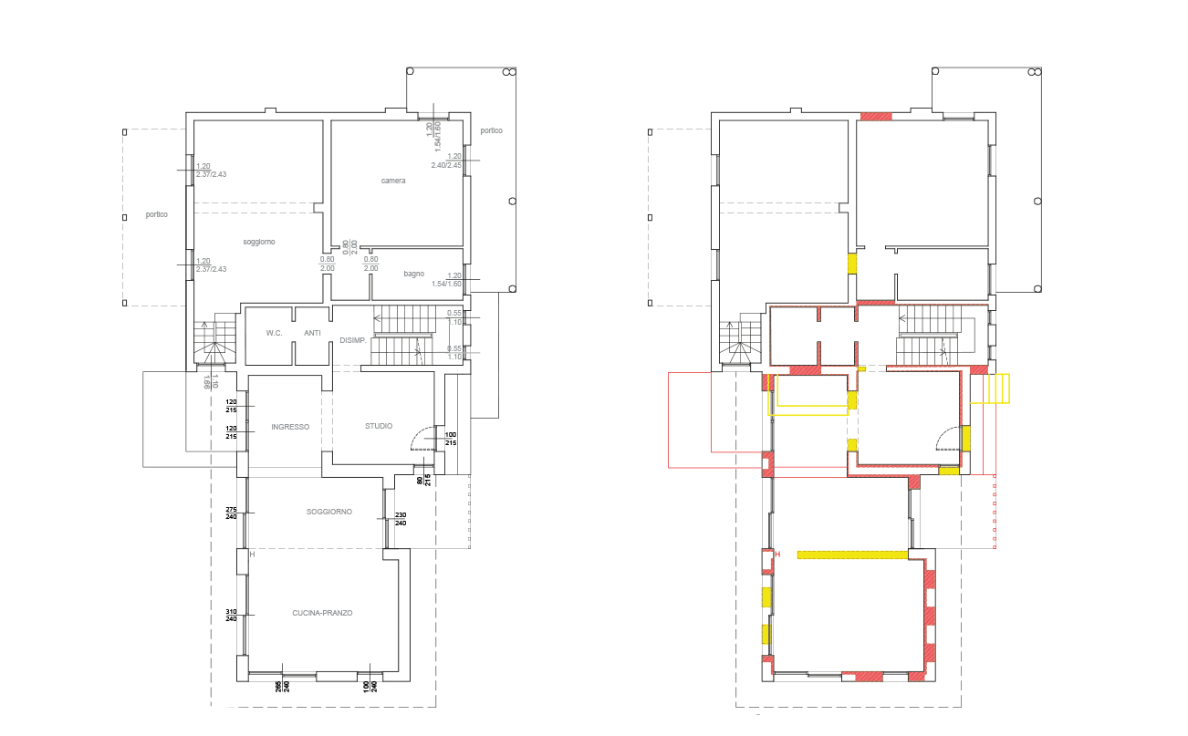
L’intervento di ristrutturazione interessa una villa, realizzata negli anni ’80, collocata all’interno del tessuto urbano di un quartiere residenziale sito nel territorio del Comune di Cittadella.



Attraverso il recupero del volume esistente e il relativo cambio di destinazione d’uso, il progetto prevede la divisione in due distinte unità abitative.
L’ampliamento, pur inserendosi in continuità con la tipologia architettonica esistente, prevede la creazione di una nuova residenza indipendente che si sviluppa, anche grazie alla realizzazione di ampie fotometrie, in stretta correlazione con il parco esistente ed il contesto di pertinenza.





